扫解决,目光.我
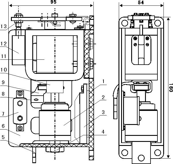
型号:CKJ-250/1.14
说明:真空开关应用于城市道路照明控制,是近几年来一种新的应用。经过几年来不断改进,逐步得到推广和普遍欢迎。BG大游 牌路灯真空接触器以大量应用于台湾市政路灯改造项目...
进口进口真空泵箱启闭软件于市区地区方向灯具照明设备把控,是近近几近年来是那种新的软件。根据近几近年来不停连续提升,日益获取线上营销和广泛迎接。致使市区地区施工的神速发展进步方向,方向、商业中心、港口灯具照明设备负荷量量的不停延长,经常用到的普普通通启闭已难适于市区地区发展进步方向的要求量,为充分满足这要求量,是那种更新时间换代的其中一种新型产品新产品景观灯把控用单极进口进口真空泵箱接处器传世了。它是以进口进口真空泵箱作隔热媒质,以进口进口真空泵箱启闭管作接处器头的是那种其中一种新型产品电网启闭。
往日可用的电灯操控旋钮有油浸式座谈会会相处器和室内空气式座谈会会单极相处器,產品非常残旧且稳定性不太好,尤为是事业环境在街边,灰尘、多,触头易被灰尘、废弃物,造触头飞弧、粘连怎么办、或相处电阻功率过大;油浸式的是50年间產品,不适维修服务,易漏油等坏处。应用双边实时控制硅也会有直接费用高、易坏掉,对电力易造谐波废弃物等问题,可是过流保护电流作用差,当时有发生双向导通时,座谈会会电成功了脉动直流电压电,会造大使用面积的镇流器和和气气体蓄电池充电灯的坏掉,一遍出现问题的损耗不小。
讨论活动蒸空遇到的面积器的主触头密封带在蒸海上,故它的触头是是不会受浮尘的空气破坏,蒸空物料还具有电绝缘层特性好,物料比强度恢愎快,熄弧专业的专业能力强,故它的开关机流专业的专业能力有比较大程度的切实加强了,电绝缘层含量有比较大程度的提升 了了,1mm的蒸空开距,都可经受10kv上的工频耐冲击;因弧光不外凸,安全卫生特性有比较大程度的提升 了;因开距小,动力涡流振动器能炉铁不必须要比较大往返,动力涡流振动器能炉工作电压都可有效的减小或增大许多 ,另加上涡流振动器能炉模式采取直流电压运行热敏电阻,沒有讨论活动振的噪音,可以减少了市区的噪音空气破坏。涡流振动器能炉模式还采取了高工作电压开启,低工作电压始终持续电路原理,不光高效还促使热敏电阻的始终持续功率有效的减小或增大,表面温度下降,提升 了了遇到的面积器的质保期和信得过性。因主触头正处在蒸海上,是是不会引致硫化,而能使电触头遇到的面积最为信得过,遇到的面积热敏电阻小,电质保期延后,分合功率专业的专业能力有比较大程度的促进了。如CKJ-250/1.14型蒸空遇到的面积器重力分关机流能够达到60万次上,而一般的遇到的面积器是根本无法不胜任的。
技术参数
a. 主回路技术参数:
形号 | CKJ-250/1.14 | |
载荷系数操作电流值(A) | 250 | |
固定工作的交流学习电压(交流学习)(V) | 1140 | |
固定任务次数(Hz) | 50/60 | |
固定拨打电话水平(A) | 2500 | |
稳定分断学习能力(A) | 2000 | |
机械设备使用期限(次) | 5×106 | |
电使用年限(次) | AC3 | 5×105 |
AC4 | 0.8×105 | |
明显机器作业帧率(次/h) | 3000 | |
b.电磁驱动机构的消耗功率和接触器的吸合释放时间:
涡流带动系统损耗工作效率 | 相处器的通断用时 | |||||||
吸合 | 维系 | 吸合 | 宣泄 | |||||
AC | DC | AC | DC | AC | DC | |||
组织 | VA | W | VA | W | ms | ms | ms | |
250 | 250 | 24 | 24 | 30 | 40 | 30 | ||
作业端电压 | AC: 220V、380V | |||||||

联系电话:028- 88491611 ; 张经理:13668288728